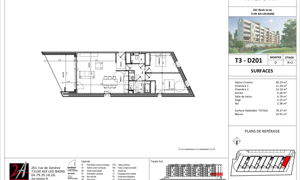
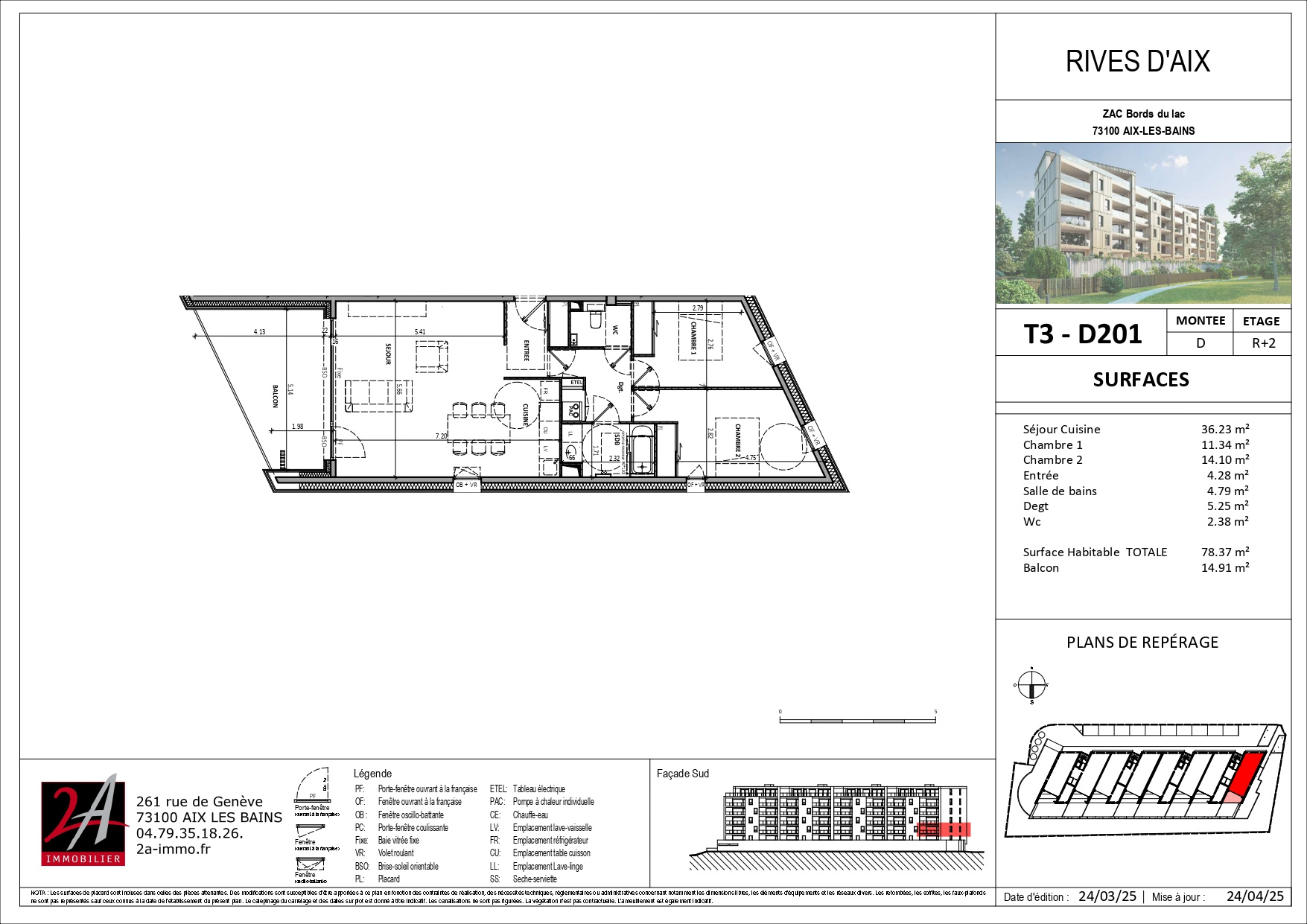
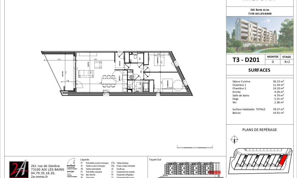
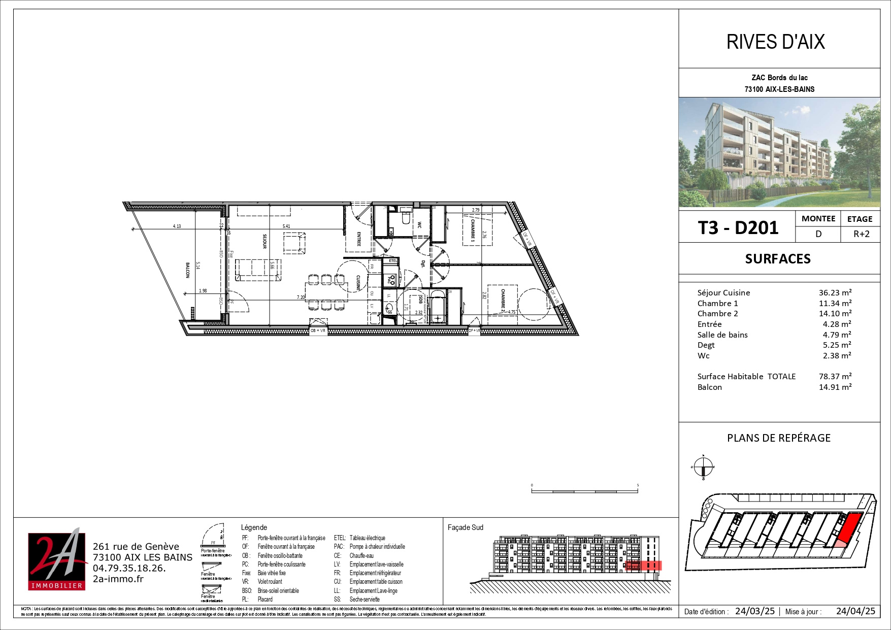
Les Rives d'Aix, nouveau programme neuf disponible pour le quatrième trimestre 2027. A 200 mètres de l'esplanade et du Lac du Bourget, cette résidence se compose de 44 appartements de standing allant du T2 (environ 61 m2) au T5 ((environ 150 m2). Intelligemment agencés, les volumes privilégient des espaces confortables, spacieux et ouverts sur l’extérieur. Appartements très lumineux car traversants, profitant de très grandes terrasses avec vues dégagées sur les montagnes. Chaque logement est composé d’un cellier et au minimum d’un stationnement couvert et sécurisé. Local à vélo. Les Rives d'Aix bénéficie de la certification au label NF Habitat HQE<br> A proximté immédiate, son port de plaisance, ses plages et les reliefs verdoyants des massifs des Bauges et de la Chartreuse. La Riviera des Alpes et ses environs offre à ses résidents une qualité de vie exceptionnelle en toutes saisons. C’est aussi un large éventail d’activités de loisirs dans un cadre naturel privilégié : thermes, voile, golf, ski, vélo, randonnée… <br> <br> L'appartement ici concerné est le T3 no D201, deuxième étage, et vendu avec les box no 72 et 73
Honoraires charge vendeur
Nombre de lots de la copropriété : N.C.
Procédure(s) en cours de la copropriété : NOTPROCESS
Informations non contractuelles ne pouvant engager la société.



